2 pokoje z tarasem | Smart Home |

Mieszkanie na sprzedaż
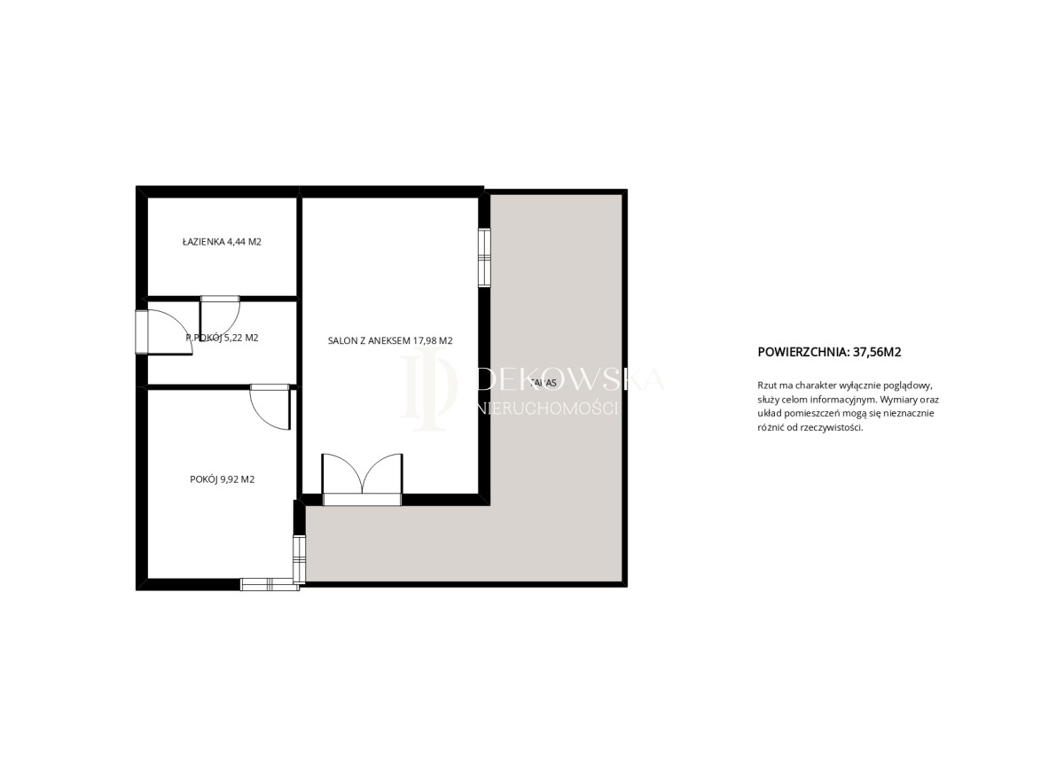
369 000,00 PLN , Pow. 37,56 m2
Drukuj ofertę
Drukuj ofertę
Typ nieruchomości:
Mieszkanie
Powierzchnia:
37,56 m2
Typ transakcji:
sprzedaż
Liczba pokoi:
2
Lokalizacja:
Brzozówka , Okrężna
Rok budowy:
2018
Piętro:
0 na 2
Numer oferty:
383442
Cena za m2:
9 824,28 PLN
2-pokojowe mieszkanie o powierzchni 37,56 m², położone na parterze w kameralnej, niskiej zabudowie, zaprojektowane z dbałością o detale, funkcjonalność i spójność stylistyczną. Wnętrze utrzymane jest w nowoczesnym, ponadczasowym stylu z akcentami industrialnymi i designerskim oświetleniem.

Przestrzeń dzienna to salon z otwartą kuchnią w zabudowie, tworzący komfortową strefę wypoczynku. Duże przeszklenie zapewnia dostęp do tarasu oraz naturalne światło z ekspozycji wschodniej, dzięki czemu mieszkanie jest jasne i przyjemne od samego rana.

Sypialnia została zaaranżowana w klimacie prywatnej strefy relaksu - wyposażona w biokominek oraz telewizor, co nadaje wnętrzu wyjątkowy charakter.

Mieszkanie wyposażone jest w system smart home, umożliwiający sterowanie oświetleniem, podświetleniami LED oraz klimatem wnętrza za pomocą panelu dotykowego i aplikacji w telefonie. Podwieszane sufity, dekoracyjne linie świetlne oraz nowoczesna zabudowa podnoszą standard całej nieruchomości.

Osiedle zamknięte, ogrodzone, bardzo kameralne - w budynkach znajduje się niewielka liczba mieszkań. Dodatkowym atutem jest duży parking dla mieszkańców oraz komórki lokatorskie w osobnym budynku. Lokalizacja zapewnia ciszę, prywatność i komfort codziennego życia.

Rozkład pomieszczeń:
Salon z aneksem kuchennym - 17,86 m²
Sypialnia - 9,78 m²
Łazienka - 4,32 m²
Przedpokój - 5,16 m²
Taras - około 25 m²
Komórka lokatorska - 3,5m²

Powierzchnia mieszkania: 37,56 m²

Standard i wyposażenie:

• system smart home (panel + aplikacja)
• podwieszane sufity z oświetleniem LED
• oświetlenie dekoracyjne
• zabudowa kuchenna na wymiar
• nowoczesna zabudowa w salonie
• sypialnia z biokominkiem i TV
• taras z wyjściem z salonu
• mieszkanie gotowe do zamieszkania
• kameralna niska zabudowa
• osiedle ogrodzone
• duży parking dla mieszkańców
• komórka lokatorska w osobnym budynku

To idealna propozycja dla osób poszukujących mieszkania o podwyższonym standardzie, gotowego do zamieszkania lub jako inwestycja pod wynajem.

Serdecznie zapraszam do kontaktu i umówienia prezentacji - to mieszkanie zdecydowanie najlepiej poczuć będąc w jego wnętrzu.

Kupujący nie ponosi kosztów prowizji! Skorzystaj z wyjątkowej oferty i ciesz się zakupem nieruchomości bez dodatkowych opłat prowizyjnych.

Katarzyna Gruszka
Doradca ds.Nieruchomości
tel. +48 793 955 505
kasia.dekowskanieruchomosci@gmail.com


Wskaźnik rocznego zapotrzebowania na energię użytkową (EU): 36.79 kWh/(m2 · rok).
Wskaźnik rocznego zapotrzebowania na energię końcową (EK): 43.68 kWh/(m2 · rok).
Wskaźnik rocznego zapotrzebowania na nieodnawialną energię pierwotną (EP): 49.02 kWh/(m2 · rok).
Jednostkowa wielkość emisji CO2 (E CO2): 0.0088 t CO2/(m2 · rok).
Udział odnawialnych źródeł energii w rocznym zapotrzebowaniu na energię końcową (U OZE): 0.00 %.
Adres strony www: https://dekowskanieruchomosci.pl/
Nieprawidłowy adres E-mail