3 pokoje z loggią na ul. Bolta Na Skarpie

Mieszkanie na sprzedaż
629 000,00 PLN , Pow. 61,13 m2
Drukuj ofertę
Drukuj ofertę
Typ nieruchomości:
Mieszkanie
Powierzchnia:
61,13 m2
Typ transakcji:
sprzedaż
Liczba pokoi:
3
Lokalizacja:
Toruń Na Skarpie , Antoniego Bolta
Rok budowy:
1984
Piętro:
1 na 4
Numer oferty:
265543
Cena za m2:
10 289,55 PLN
KUPUJĄCY NIE PONOSI KOSZTÓW PROWIZJI!


Na sprzedaż w pełni rozkładowe mieszkanie o powierzchni 61,13 m² położone na pierwszym piętrze w czteropiętrowym bloku z 1984 roku, na cenionym toruńskim osiedlu Na Skarpie - dodatkowo na jednej z najbardziej lubianych ulic - ulicy Bolta.
To idealna propozycja dla osób szukających funkcjonalnego układu pomieszczeń, ciszy i wygodnej lokalizacji z pełną infrastrukturą w zasięgu kilku minut.

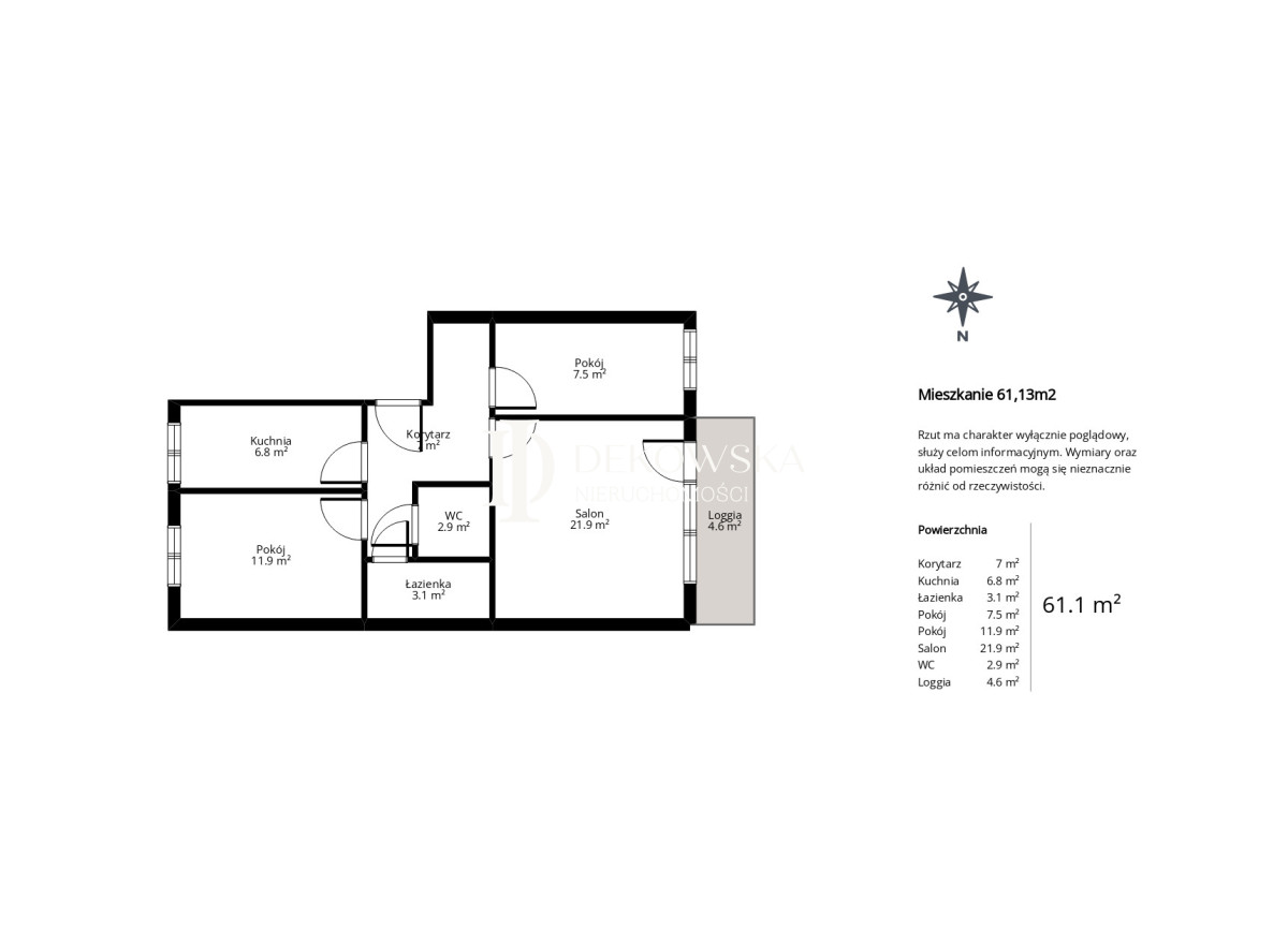
Lokal składa się z przestronnego salonu (21,9m²) z wyjściem na loggię (pow. 4,6m²), dwóch pokoi (11,9m² i 7,5m²), oddzielnej kuchni (6,8m²), łazienki (3,1m²), osobnej toalety (2,9m²) oraz przedpokoju (7m²).
Salon z loggią i mniejszy z pokoi mają ekspozycję zachodnią, dzięki czemu wnętrza są dobrze doświetlone popołudniowym słońcem. Kuchnia oraz drugi pokój wychodzą na stronę wschodnią, co zapewnia przyjemne światło od rana.

Dużym atutem mieszkania jest jego położenie na pierwszym piętrze - to wygodne rozwiązanie zarówno dla rodzin z dziećmi, osób starszych, jak i wszystkich, którzy cenią komfort codziennego funkcjonowania bez konieczności pokonywania wielu schodów.
Brak windy przy takim piętrze nie stanowi problemu, a jednocześnie daje większe poczucie prywatności niż mieszkania na parterze.

Mieszkanie jest ciche, z przyjemnym rozkładem pomieszczeń i praktycznym podziałem na strefę dzienną i prywatną. Loggia przy salonie będzie świetnym miejscem na poranną kawę lub odpoczynek po pracy.

Okolica zapewnia bardzo dobrą dostępność miejsc parkingowych, sklepów, punktów usługowych i placówek edukacyjnych. W pobliżu znajdują się między innymi: Carrefour Market, większe centrum handlowe Centrum Handlowe Nowe Bielawy oraz popularne sklepy spożywcze, takie jak Lidl, Biedronka, Torimpex czy PoloMarket.

W okolicy nie brakuje także piekarni i cukierni, między innymi Cafe & Cukiernia Lenkiewicz, Bartkowscy; pizzerii, np. Roma lub Azurro, a także przychodni.
Rodziny z dziećmi docenią bliskość placówek edukacyjnych, takich jak Butterfly Językowa Szkoła Podstawowa Przedszkole Żłobek, Żłobek Miejski nr 3 oraz położona bardzo blisko Społeczna Szkoła Podstawowa Stowarzyszenia "Edukacja". W pobliżu znajdują się również licea, między innymi LO nr III.

W codziennym funkcjonowaniu pomocna będzie także dostępność aptek, a także pobliskich kościołów, między innymi Parafia św. Maksymiliana Kolbego.
Niedaleko znajdziemy również boisko, Park Na Skarpie czy Miasteczko Rowerowe.

To mieszkanie będzie świetnym wyborem zarówno dla rodziny, jak i osób szukających wygodnej lokalizacji z szybkim dostępem do sklepów, szkół, komunikacji miejskiej i terenów spacerowych.

Najbliższe przystanki od ul. Bolta to przede wszystkim „Przy Skarpie”, „Jamontta” oraz „Ślaskiego”. Dzięki temu mieszkańcy mają szybki dostęp zarówno do tramwajów, jak i autobusów kursujących w stronę centrum, Rubinkowa, Bielan czy dworca.
W pobliżu kursują tramwaje linii 1, 5 i 6. Linia 1 jedzie między Uniwersytetem a Olimpijską P&R i zatrzymuje się m.in. na przystankach Przy Skarpie, Jamontta i Ślaskiego.

Po uruchomieniu nowych tras na wschodzie miasta okolice Na Skarpie obsługiwane są także przez linię tramwajową 6, która łączy Olimpijską z północną częścią Torunia i Jarem.

Jeżeli chodzi o autobusy, w tej części osiedla kursują między innymi linie 27, 30, 31, 32, 33 i 35, które zapewniają wygodne połączenie z centrum miasta, Rubinkowem, Bielanami, Podgórzem czy dworcem. Dzięki temu lokalizacja jest bardzo wygodna zarówno dla osób korzystających z komunikacji miejskiej na co dzień, jak i rodzin z dziećmi lub uczniów dojeżdżających do szkół.



Kupujący nie ponosi kosztów prowizji!
Skorzystaj z wyjątkowej oferty i ciesz się zakupem nieruchomości bez dodatkowych opłat prowizyjnych.

Karolina Sławińska
Doradca ds. Nieruchomości

tel.: 570 822 955
e-mail: karolina.dekowskanieruchomosci@gmail.com
https://www.dekowskanieruchomosci.pl/ 
Nieprawidłowy adres E-mail